Pittsburgh Home & Building Design
Serving Pittsburgh, PA and Surrounding Areas
Contact Bottega Drafting + Design Today
Contact Bottega Drafting + Design today for more service information or Schedule an Appointment with us now:
Contact Us
Building Designer in Pittsburgh, PA
At Bottega Drafting + Design, we specialize in creating custom home designs and providing expert building and construction drafting services in Pittsburgh, PA
Whether you're envisioning a brand-new custom home or looking to improve or expand your current property, we offer the experience, creativity, and attention to detail to bring your vision to life. Our goal is to provide designs that meet your needs, reflect your style, and fit your budget.
Do You Need a Drafting Service or a Design Professional?
When planning a building or renovation project, it can be confusing to know whether you need a draftsperson or a design professional. While their roles overlap, they serve different purposes:
- A Draftsperson is skilled at preparing conceptual and construction drawings, typically under the direction of an architect or contractor.
- A Design Professional goes a step further—developing the overall vision of the project, producing detailed drawings, and collaborating with the construction team from start to finish.
At Bottega, we do both. From concept to completion, we’re here to help bring your ideas to life with precision and creativity.
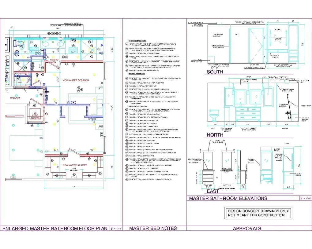
Designing and Planning
Helping Property Owners Maximize Their Space
Sometimes property owners struggle to make the most of their space or investment. That’s where we come in.
At Bottega, we begin by taking accurate site measurements and evaluating existing conditions—utilities, structural elements, electrical, and plumbing. We then offer strategic design options tailored to your goals.
Through thoughtful space planning and zoning based on activities, we strive to:
- Enhance movement and flow
- Identify and emphasize key focal points
- Maximize natural lighting
Our design process ensures every space is not only beautiful but functional and intentional.
Construction Documents and Specifications
From Concept to Technical Execution
Designing a space is only part of the process—translating that design into precise documentation is where expertise truly matters.
Creating construction drawings and compiling product specifications takes deep knowledge and considerable time. By working with Bottega, you gain access to our expertise and efficiency—saving both time and money during construction.
We provide:
- Detailed construction documents
- Permit support and code research
- Design solutions and value-enhancing options
With Cassie’s background in real estate investing, every project is approached with a sharp eye for increasing property value.
Site Evaluations and Measuring
It’s All in the Details
A thorough site evaluation sets the foundation for a successful project. Our team documents every element that could impact the design, from structural components hidden behind walls to HVAC locations, property lines, elevation changes, and more.
By catching potential issues early, we save our clients costly delays and redesigns down the road.
Collaborating with Contractors
Building a Solid Foundation of Communication
Construction often presents challenges that fall outside a property owner's expertise. That’s why clear communication with contractors is essential.
We coordinate closely with contractors—sometimes even before the owner’s first meeting—to build a collaborative, trustworthy team environment. This proactive approach helps ensure the project stays on schedule and on budget.
Understanding Client Goals
Design that Reflects Your Vision
Bottega takes the time to understand each client’s vision, goals, and intended use of the space.
We listen carefully, translate ideas into actionable plans, and remain engaged throughout the construction process to help bring your dream to life.
Working with Engineers
Collaboration for a Cohesive Design
Many projects require input from various engineering specialists. Our detailed drawings provide engineers with the information they need to do their work effectively.
We maintain open lines of communication and adapt as needed—ensuring engineering input is seamlessly integrated into the design.
Oversight You Can Count On
Construction management involves scheduling trades, managing materials, tracking budgets, and staying adaptable when changes arise.
While a general contractor typically handles this, Bottega offers additional support to keep the project on track—providing oversight and consistent communication so our clients stay informed every step of the way.
Why Choose Bottega Drafting + Design?
Experienced & Knowledgeable
While we aren’t licensed architects, our team brings extensive experience in architectural design and construction drafting, offering the same level of expertise needed to execute a successful project. We provide the technical knowledge and design acumen to guide your project from idea to reality.
Collaborative Approach
We understand that every project is unique, which is why we work closely with you throughout the entire process. Your input is crucial to developing a design that truly reflects your vision. We’re here to offer our expertise while ensuring that your preferences and goals are at the heart of every decision.
Locally Focused
As a proud part of the Pittsburgh community, we are deeply invested in providing our neighbors with high-quality design solutions that are both practical and beautiful. We are familiar with the local architecture and construction styles, allowing us to create designs that complement the Pittsburgh area’s character and charm.
Attention to Detail
We take great pride in our meticulous approach to every project. From the smallest details to the largest structural elements, we ensure that your design is thoroughly thought out and executed to the highest standards. Our attention to detail ensures that your project progresses smoothly and meets all of your expectations.
Tailored Solutions for Every Budget
Whether you're working with a modest budget or planning a high-end custom build, we focus on delivering designs that meet your financial goals without compromising quality. Our team is skilled at finding creative, cost-effective solutions that make the most of your budget while ensuring your vision is realized.
Timely Delivery & Project Management
We understand that time is a crucial factor in any building project. We prioritize timely delivery of all designs and drafts, ensuring that your project stays on track. Our experience with project management means that we can provide clear timelines and updates, helping your construction process run efficiently from start to finish.
Sustainability & Environmental Responsibility
We are committed to incorporating sustainable design principles in our projects, helping you create energy-efficient homes that reduce environmental impact. Whether through passive design techniques, sustainable materials, or energy-efficient systems, we work with you to integrate eco-friendly solutions into your home design.
Ready to Start Your Project?
At Bottega Drafting + Design, we are dedicated to turning your dreams into reality. Whether you’re looking to design a custom home, add to your current space, or need detailed construction plans for your next project, we’re here to guide you every step of the way. Let’s connect and start the journey toward creating the home you’ve always envisioned.




















